


Avec des projets ancrés au cœur de Montauroux, notre bureau d’architecte à Montauroux façonne chaque espace comme une œuvre habitée par la lumière et le paysage environnant. Ici, l’ombre et le soleil deviennent matériaux, le trait se fait matière, et chaque volume dessine une harmonie entre rigueur constructive et émotion sensible. Notre atelier d’architecte à Montauroux ne compose pas seulement des plans : il révèle des lieux d’équilibre, où la poésie dialogue avec la fonction, où chaque détail raconte un fragment d’identité.
Qu’il s’agisse de restaurer une bastide ancienne, d’imaginer l’extension contemporaine d’une maison provençale ou de concevoir une création neuve ouverte sur le paysage, notre atelier d’architecte à Montauroux accompagne particuliers et professionnels dans un parcours sur mesure — du rêve initial aux dernières étapes administratives. Les esquisses naissent d’une intuition, les plans se développent en précision, les dossiers techniques et permis de construire prennent vie dans une exigence constante de justesse et de durabilité.
Déjà sollicité à Montauroux pour divers projets, notamment le permis de construire du chemin des Esclapières, 83440 Montauroux, notre agence d’architecte à Montauroux connaît intimement le tissu local — reliefs, végétation, pierre, lumière et réglementation communale — qu’il transforme en matière vivante au service de la création. Cette connaissance du territoire nourrit des architectures adaptées, sensibles et pérennes.
À Montauroux, chaque maison rénovée, chaque commerce repensé, chaque espace intérieur ou extérieur devient une expression singulière de votre manière d’habiter. Qu’il s’agisse d’une déclaration préalable, d’un cahier des charges détaillé ou d’un dossier complet de permis de construire, notre agence d’architecte à Montauroux sculpte vos idées avec sensibilité et rigueur, pour les ancrer dans la beauté naturelle du pays varois.
Au fil des années, l’expérience de notre atelier d’architecte à Montauroux s’est inscrite dans la diversité des réalisations : restauration de demeures patrimoniales, conception de villas contemporaines, aménagements de cafés, hôtels, restaurants, ou restructuration de bureaux et d’espaces médicaux. Chaque projet devient une rencontre, chaque réalisation une empreinte — une manière d’habiter le monde à travers une architecture sincère, enracinée dans son paysage et ouverte à la lumière.
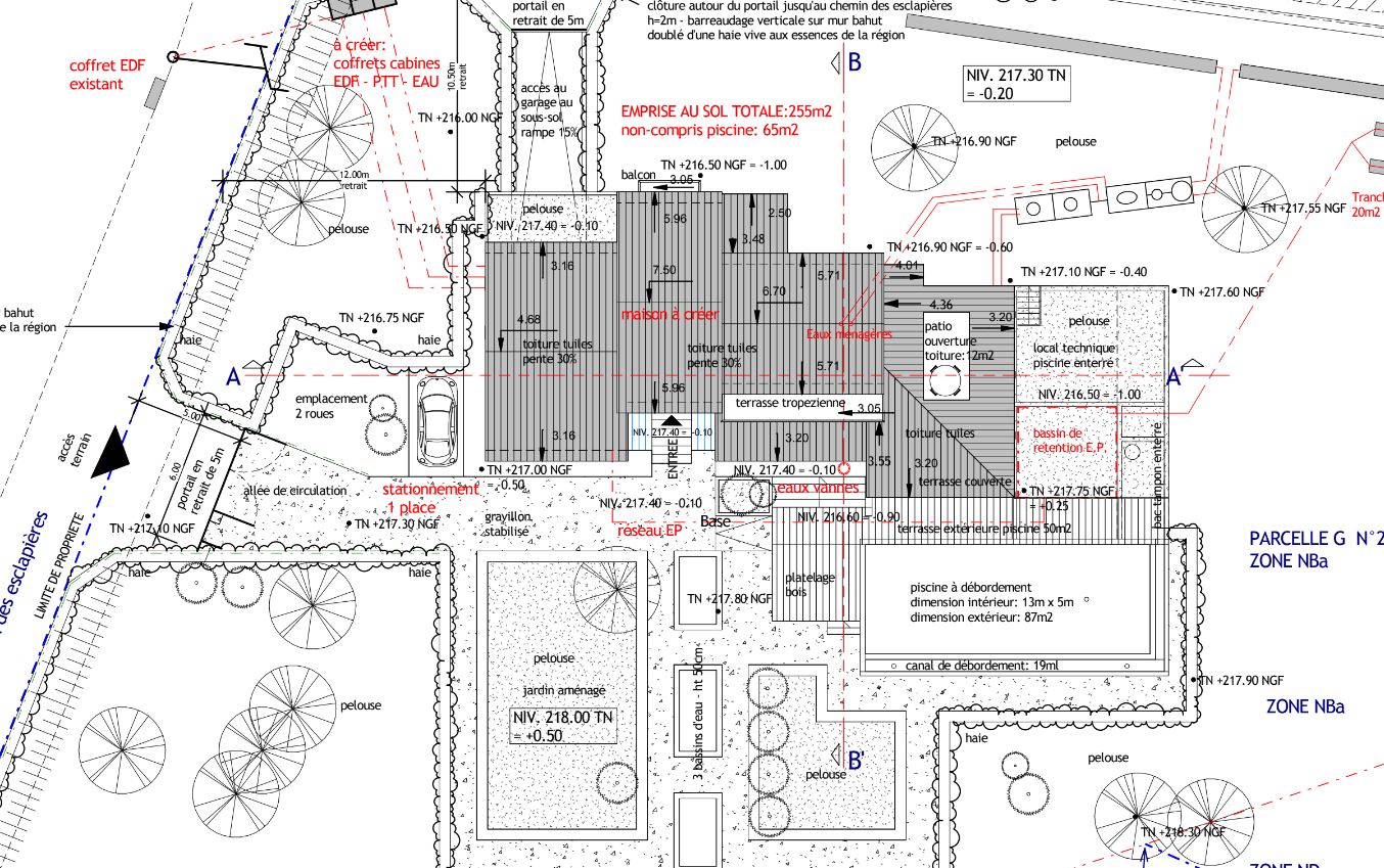
(Ci-dessus une maison avec piscine dont notre agence d'architecte a créée le projet chemin des Esclapières, 83440 Montauroux)
Porté par une exigence d’excellence et une passion profonde pour l’art de bâtir, notre bureau d’architecte à Montauroux façonne chaque projet comme une œuvre d’équilibre et de lumière. Ici, la matière se mêle au paysage, le trait devient structure, et le dessin se transforme en espace de vie. L’architecture, conçue comme un dialogue entre esthétique et technique, s’inspire du relief provençal, du rythme des saisons et des usages quotidiens pour créer des lieux durables et sensibles.
Notre cabinet d’architectes à Montauroux imagine des projets où innovation et mémoire du bâti se rencontrent. Derrière chaque permis de construire, chaque plan de structure, se tisse une intention claire : magnifier le patrimoine local tout en ouvrant la voie à des formes nouvelles de confort et d’harmonie. Les volumes sont pensés dans leur cohérence fonctionnelle, les orientations dans leur rapport au soleil, les matériaux dans leur justesse thermique et visuelle.
Notre cabinet d’Architecte à Montauroux, puise dans notre connaissance du territoire pour concevoir des espaces sur mesure, que ce soit une extension lumineuse, une maison contemporaine, ou la restauration fine d’une demeure ancienne. Chaque esquisse explore la relation entre l’intérieur et l’extérieur, chaque détail raconte la rencontre entre le geste artisanal et la précision technique.
À travers un accompagnement global – du relevé initial à la réception des travaux – notre bureau d’architecte à Montauroux veille à l’équilibre entre contraintes réglementaires et liberté créative. La gestion des démarches administratives (permis de construire, déclaration préalable, dossier d’exécution) s’intègre naturellement à une mission d’auteur, où la main de l’architecte guide la réalisation avec rigueur et poésie.
Qu’il s’agisse de valoriser une maison familiale, de transformer un espace professionnel ou de concevoir un habitat ancré dans le paysage de Montauroux, notre cabinet d’architectes œuvre à révéler la beauté du lieu. Chaque réalisation devient un fragment d’architecture vivante, inscrite dans la lumière du Sud, alliée de la nature et complice des émotions humaines.
(Ci-dessus Chemin Des Esclapières 83440 Montauroux, avec le terrain comportant de la végétation importante, où notre agence d'architecte à réalisée à Montauroux le projet que vous voyez sur l'image juste au dessus)
Sous la lumière méridionale, construisez votre projet avec une agence d’architecte à Montauroux, partenaire avant-gardiste engagé dans la métamorphose de vos idées en architectures d’exception. Entre audace créative et maîtrise technique, notre agence d’architectes à Montauroux inscrit chaque projet dans la cohérence du territoire, alliant la sensibilité du geste à la précision des outils numériques.
Ancré dans le relief provençal, notre bureau d’architecte à Montauroux conçoit des réalisations sur mesure : villas contemporaines baignées de lumière, maisons connectées à la domotique intelligente, immeubles à haute performance énergétique, ou espaces commerciaux repensés pour le bien-être et la fluidité d’usage. De la modélisation 3D à la mise en œuvre sur chantier, chaque étape est pensée comme une ligne continue, un fil qui relie l’idée à la matière, le rêve à la réalité bâtie.
Face aux mutations environnementales et aux contraintes techniques de la construction durable — normes RE2020, gestion bioclimatique, certifications énergétiques et matériaux biosourcés —, notre cabinet d’architecte à Montauroux anticipe les exigences de demain. Chaque projet incarne un équilibre entre esthétique et performance, entre légèreté des formes et solidité structurelle.
Fort d’une expérience confirmée par de nombreux permis de construire et déclarations préalables menés à bien dans la région, notre cabinet d’architecte à Montauroux s’impose comme un acteur attentif et visionnaire de l’architecture contemporaine. Nous façonnons des espaces où la technologie se fait discrète, la nature présente, et la poésie du lieu omniprésente.
Confiez à notre bureau d’architecte à Montauroux l’écriture de votre projet : ensemble, transformons l’horizon du possible en un espace à vivre, innovant, durable et profondément humain.
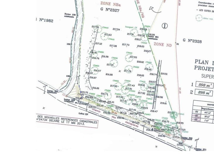
Localisation map du chemin des Esclapières 83440 Montauroux, où nous avons conçu la maison visible sur la première photo de cette page
(Ci-dessus le plan du géomètre du terrain Chemin Des Esclapières, 83440 Montaurouxs, où notre agence d'architecte à défini les plans de la maison avec piscine visible sur la première photo de cette page)
Montauroux (83440) offre un panorama architectural à la fois enraciné dans l’histoire et ouvert à la modernité, où chaque architecte à Montauroux puise son inspiration entre patrimoine, reliefs calcaires et lumière provençale.
Le vieux village de Montauroux, perché sur une barrière rocheuse, témoigne d’une architecture défensive et méditerranéenne : ruelles sinueuses, maisons en pierre aux façades enduites de teintes chaudes, toitures à tuiles canal et génoises typiques, linteaux gravés de symboles francs-maçons et treilles ombragées composent le charme du centre historique. Le dialogue constant avec l’élément minéral – pierre calcaire locale, murs épais pour l’isolation – est au cœur du savoir-faire de tout architecte à Montauroux lorsqu’il intervient sur des rénovations patrimoniales ou des extensions inspirées par l’existant.
L’architecte à Montauroux sait valoriser les édifices emblématiques de la commune tel entre autre :
-Pont des Tuves : Ouvrage historique en pierre du XIXe siècle, ce pont relie Montauroux à Saint-Cézaire au-dessus des Gorges de la Siagne, offrant un cadre naturel remarquable autour de la rivière.
-Les vestiges du castrum médiéval, portes anciennes aux linteaux gravés et autres éléments architecturaux disséminés dans le centre historique. Ces édifices forment l’identité patrimoniale de Montauroux et inspirent tout architecte à Montauroux intervenant sur le territoire.
-Les fontaines, lavoirs couverts, abreuvoirs et vestiges hydrauliques jalonnent le village et rappellent l’ingéniosité architecturale dédiée à la maîtrise de l’eau, atout essentiel dans le paysage méditerranéen.
Aujourd’hui, notre bureau d’architecte à Montauroux compose avec la tradition et la modernité. Les villas contemporaines, maisons design ou immeubles connectés s’intègrent harmonieusement dans le paysage grâce à l’utilisation de matériaux locaux (pierre calcaire, terre cuite), l’orientation sud pour maximiser l’ensoleillement et la mise en œuvre de solutions bioclimatiques et de performances énergétiques (normes RE2020, constructions écologiques et connectées). Le souci du détail – volets en bois, enduits naturels, terrasses ombragées – reflète la synthèse subtile entre l’innovation technique et l’authenticité régionale.
Notre agence d’architecte à Montauroux redonne vie au patrimoine bâti, accompagne la valorisation des espaces publics, et imagine les habitats de demain dans le respect de l’identité locale. Grâce à sa connaissance du territoire et à la maîtrise des réglementations, chaque architecte à Montauroux contribue à la préservation et à l’épanouissement du cadre architectural, transformant chaque projet en dialogue sensible avec la matière, la lumière et l’architecture du lieu.
(Ci-dessus notre agence d'architecte a créée le permis de construire de cet maison d'architecte avec piscine chemin des Esclapières, 83440 Montauroux, visible sur la première photo en haut de cette page)
Au cœur du paysage provençal, notre bureau d’architecte à Montauroux façonne des projets qui dialoguent avec la lumière et la géographie du territoire. Qu'il s'agisse de constructions neuves, d'extensions inspirées, de rénovations patrimoniales ou de réhabilitations ambitieuses, chaque mission se distingue par une maîtrise d'œuvre attentive et un regard singulier porté par notre agence d’'architecte à Montauroux.
Un accompagnement globa
Notre cabinet d’architecte à Montauroux guide chaque projet d’habitat ou d’espace professionnel de la première esquisse à la réception des travaux :
Phase de conception
-Étude de faisabilité, programmation et définition du cahier des charges
-Élaboration créative des avant-projets (APS, APD)
-Intégration des données techniques : orientation solaire, optimisation énergétique, implantation harmonieuse, conformité réglementaire
Phase administrative
-Montage et dépôt des permis de construire, déclarations préalables et autorisations d’urbanisme
-Dialogue avec les administrations locales, négociation et suivi auprès des services instructeurs
Phase de réalisation
-Assistance à la consultation des entreprises
-Direction architecturale et coordination du chantier
-Contrôle qualité, respect des pièces techniques et réception minutieuse des ouvrages
Aménagement intérieur
-Études d’agencement et sélection de matériaux nobles ou innovants
-Conseil en design d’espace, équilibre des volumes et optimisation fonctionnelle
Typologies et ambitions architecturales
Notre agence d’architecte à Montauroux intervient sur :
-Le résidentiel (villas, logements collectifs, extensions)
-L’immobilier tertiaire et commercial (bureaux, restaurants, commerces, hôtels)
-La réhabilitation (mise en conformité, performance énergétique, valorisation de patrimoine)
Une démarche responsable et inspirée
Porté par une vision durable, notre cabinet d’architecte à Montauroux veille à :
-Respecter strictement les normes (urbanisme, accessibilité, environnement)
-Valoriser l’intégration paysagère et la lumière naturelle
-Maîtriser les coûts par une gestion rigoureuse
-Offrir un suivi qualité basé sur la durabilité, la conformité technique et le respect des délais
Localisations et références
Fort d'une expérience confirmée à Montauroux et ses alentours, notre agence d’architecte s’illustre par des réalisations dans la commune et alentours, en conjuguant créativité et rigueur pour chaque projet, résidentiel comme professionnel. Chaque chantier devient un fragment d’architecture, enraciné dans la tradition, ouvert à l’innovation, et incarné par la signature de l’architecte à Montauroux.
Avec de nombreuses années d'expériences, nous pourrons réaliser la conception de votre maison, villa, immeuble...
